ドルミ東品川 | 株式会社リアルキューブ ドルミ東品川

ドルミ東品川

ドルミ東品川のフルリノベーション

この物件のリノベーション事例はこちら
詳しく見る
  • ご成約しました。

  • ブルーグレーのアクセントカラーが美しいLDK

  • ブルーグレーのアクセントカラーが美しいLDK

  • 窓のない中部屋には室内窓を設置

  • 作業スペースや収納が多いL型キッチンを設置しました

  • オリジナルの造作洗面台です。

  • お風呂は鏡をつけず、お掃除をしやすいマグネット式のタオル掛け等を設置しました

  • 洋室の写真です

  • バルコニーは南向きで日当たりも風通しも良好なお部屋です。

  • バルコニーは南向きで日当たりも風通しも良好なお部屋です。

  • メールボックスコーナーとエレベーター

  • マンション外観

DATA :
  • 物件ナンバー

    020

  • 物件名

    ドルミ東品川

  • 種別

  • 販売価格

    ----万円

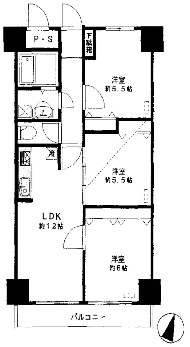
  • 間取り

    3LDK

  • 交通

    りんかい線「品川シーサイド」駅徒歩8分 京急本線「新馬場」駅徒歩11分

  • 所在地

    東京都品川区東品川3-16-3

  • 構造

    SRC・ RC

  • 築年月

    1979年2月築

  • 専有面積

    58.24㎡(壁芯)

  • 階層

    10階建 6階部分

  • 管理形態

    全部委託(日勤)

  • 管理費

    4,500円/月

  • 修繕積立金

    11,000円/月

  • 取引態様

    売主

  • 小学校区

    区立城南第二小学校(450m)

  • 中学校区

    区立東海中学校(220m)

  • 駐車場

    空きなし 23,000円/月

  • 駐輪場

    100円〜/月

  • バイク置き場

    1,000円〜/月

  • 総戸数

    128戸

  • 土地権利

    所有権

  • 現況

    空室

  • 主要採光面

    南向き

  • バルコニー面積

    7.00㎡

  • 管理会社

    株式会社日本管財

  • 施工会社

    株式会社日産建設

  • 引渡し

    即時(リノベーション工事完了後)

  • ペット

    飼育可能(細則あり)

  • ハザードマップ

    品川区ハザードマップ ▷▷▷ 品川区のページで確認する

注目ポイント

ショッピング施設や公園、小学校、中学校、駅も徒歩10分圏内で揃っているナイスなエリアにある物件です。 子育て世代にはもってこいです! 室内はフルスケルトンリノベーションで新規に生まれ変わりました。 間取りはクセのないシンプルな間取。 そんな中に、【リアルキューブエッセンス】をしっかり落とし込んだ内装に仕上がりました。 ぜひ、お気軽にご見学にお越しください。

周辺環境

イオンスタイル品川シーサイド 400m

区立東海中学校 220m

区立城南第二小学校 450m

MAP

月々のお支払いの目安

  • 物件価格

    ----万円

  • 参考
    リノベ費用

    1020万円

  • 月々の
    ローンの目安

    ----円/月

  • 管理費

    4,500円/月

  • 修繕積立金

    11,000円/月

※ローンの目安は、頭金ゼロ、借入年数35年、都市銀行・変動金利0.65%(優遇利用)を想定。審査内容により、融資の一部または全部をご利用頂けない場合がございます。予めご了承ください

この物件のお問い合わせはこちらから!

000:物件タイトル

以下のお問い合わせフォームにご質問内容などをご記入の上、送信してください。

お問い合わせ内容
お名前
フリガナ
性別
年齢
電話
メールアドレス
メールアドレスチェック
家族構成
ご希望日時

第1希望

第2希望

参加人数

おとな

おこさま

ご状況

検討中の内容に一番近い内容を選択してください。

ご質問

最初にリアルキューブを知ったのはどこですか?

「WEB検索」を選択された場合は、具体的に入力してください。

「その他」を選択された場合は、具体的に入力してください。

その他

個人情報取扱事業者

株式会社 リアルキューブ 代表取締役 平松 孝介
事務所 東京都中央区日本橋久松町4-7 4F

個人情報の取得、利用、提供の基本方針

お客様の個人情報の取得は、適正な手段によって行なうとともに、利用の目的の公表・通知・明示等を行ない、 ご本人の同意なく、利用目的の範囲を超えた個人情報のお取り扱いは致しません。また、個人情報を第三者に提供、 開示等を行なう場合は、法令の定める手続きに従って行ないます。

お客様の個人情報の利用目的

お客様の個人情報は、以下の目的に利用致します。

お客様の個人情報の利用目的

お客様の個人情報は、以下の目的に利用致します。

  1. 不動産の売買およびそれらの代理・仲介に関する事業
  2. 建物の設計・施工・アフターメンテナンス・リノベーション・リフォーム等、建設に関する事業
  3. 不動産の管理に関する事業
  4. 住宅資材、インテリア商品他住宅・生活用品、装飾関連商品等の輸出入・販売に関する事業
  5. 保険代理店事業
  6. 上記の各事業に付帯・関連する事業及びサービス

上記の事業及びサービスに関して、郵便物・電子メール・電話・訪問等の方法による物件情報や商品情報、 プラン・金額の提示、勧誘、商品の紹介等の営業活動、不動産の建設・アフターメンテナンス他住宅設備機器等の リコールの実施、顧客動向・利用状況・利用環境・商品・営業手法の開発等の調査分析、会計監査上の確認作業、 および上記事業における緊急時の対応やお客様の要望に応じたサービスの提供等、必要に応じてお客様とご 連絡を取らせていただく為に利用致します。また、上記各事業の目的の達成に必要な範囲での個人情報の第三者提供を行ないます。

個人情報の第三者への提供

お客様の個人情報は、裁判所、警察、またはそれらに準じた権限を持った機関から合法的な要請があった場合は、 これに応じて開示させて頂く他、前記利用目的の達成に必要な範囲で書面・郵便物・電話・インターネット・電子メール ・広告媒体等で第三者に提供されることがあります。なおご本人からの申し出により相手先への提供は停止致します。

〔個人情報の提供先例〕

  • 不動産の販売における事業主、代理会社、媒介会社
  • 不動産の売買の代理・仲介および月極駐車場等における契約の相手方となる者、その見込者、他の宅地建物取引業者、 広告掲載業者・不動産事業者団体、指定流通機構
  • 不動産取引の付帯・関連業務における金融機関、司法書士、土地家屋調査士、不動産管理業者
  • 保険会社、工事下請会社、インターネット接続代行会社、インテリア商品取扱会社、内装リフォーム会社、引越運送会社、レンタル家具家電サービス会社、地デジアンテナ工事会社、太陽光発電システム設置工事会社、住宅機器・設備工事業者

〔提供される個人情報の項目〕

お客様の氏名、住所、電話番号、Eメールアドレス、物件情報、成約情報等、前記の利用目的の達成に必要な範囲の個人情報、個人データの項目

個人情報の共同利用

当社は、当社のグループ会社及び共同事業会社との間でお客様の個人情報、個人データを共同して利用致します。

〔利用目的〕

前記「お客様の個人情報の利用目的」と同様

〔共同して利用する個人情報、個人データの項目〕

お客様の氏名、ご住所、電話番号、Eメールアドレス、物件情報、成約情報等、前記の利用目的の達成に必要な範囲の個人情報、個人データの項目

各種お問い合わせ窓口

当社が保有する保有個人データの内容について、事実と異なる記載がある場合には、訂正、変更等の手続きを取らせていただきます。また、当社が保有する保有個人データの開示または、利用の停止のご請求をされる場合、その他個人情報に関するご質問、ご意見等のお申し出については、 以下のお問い合わせ窓口にご連絡下さい。

株式会社リアルキューブ 代表取締役 平松 孝介
〒103-0005 東京都中央区日本橋久松町4-7 4F
TEL:03‐5651‐7725 FAX:03‐5651‐7726

新着物件はこちら!

ページトップに戻るGO TOP
LINEアイコン お客様専用LINE 資料請求アイコン 資料請求